
-
Arquitetos: Itm Yooehwa Architects
- Área: 674 m²
- Ano: 2022
-
Fotografias:Yongkwan Kim

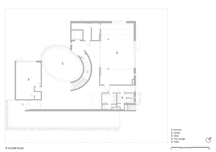
Descrição enviada pela equipe de projeto. Este museu de arte dedicado ao arquiteto nipo-coreano Itami Jun — o Museu Itami Jun — foi concebido segundo a sua filosofia de que “a arquitetura deve enraizar-se e frutificar a partir do contexto e das tradições locais”, além de refletir suas principais linguagens arquitetônicas. Ao adaptar-se às especificidades de Jeju, o arquiteto buscava não perturbar a natureza horizontal e serena da floresta de Gokjawal que envolve o local.

A fachada é marcada por concreto aparente com um padrão ogival que reproduz o veio da madeira, suavizando a frieza do material com essa textura. A intenção foi harmonizar os tradicionais muros de pedra de Jeju com o material mais contemporâneo — o aço inoxidável —, criando um contraste com a paisagem selvagem ao redor. A entrada do museu se dá ao longo desse muro, que funciona também como um espaço de transição. Ao adentrar o edifício, o centro do saguão é atravessado pela massa elíptica que já é perceptível no exterior.A iluminação artificial é reduzida ao mínimo, permitindo que a luz natural percorra o volume elíptico por meio de frestas entre a massa e a cobertura. A biblioteca, localizada no primeiro pavimento, é revestida em um tom de nanquim — cor característica do espaço criativo de Itami Jun —, e a combinação de materiais distintos em piso, paredes e teto produz uma harmonia de nuances que evocam diferentes “sonoridades”.

A iluminação artificial é reduzida ao mínimo, permitindo que a luz natural percorra o volume elíptico por meio de frestas entre a massa e a cobertura. A biblioteca, localizada no primeiro pavimento, é revestida em um tom de nanquim — cor característica do espaço criativo de Itami Jun —, e a combinação de materiais distintos em piso, paredes e teto produz uma harmonia de nuances que evocam diferentes sons.


Esse espaço em tom de nanquim simboliza o ambiente de imersão e criação que esteve no centro da obra de Itami Jun. A intenção era criar luz na escuridão, silêncio na solitude e calor na quietude — ecos da vida do arquiteto, que sempre existiu como uma espécie de vigia solitário.




Por meio de aberturas estratégicas voltadas para o entorno, todos os espaços do primeiro pavimento se conectam diretamente com a paisagem natural. Subindo pela escada que acompanha o volume atravessado pela luz natural, o visitante alcança as salas de exposição do segundo pavimento. O Museu Itami Jun materializa uma ideia de coexistência profunda entre arquitetura e natureza.

A exposição permanente no segundo pavimento possui o contorno da ilha de Jeju. O espaço oval é o núcleo do museu e abriga uma seleção das obras mais representativas de Itami Jun. É nesse salão que se apresenta, de forma contínua, o legado essencial do arquiteto.























