
-
Arquitetos: Hinzstudio
- Área: 245 m²
- Ano: 2025
-
Fotografias:Quang Trần

Descrição enviada pela equipe de projeto. A M.Casa reinterpreta o espírito da casa tradicional vietnamita, equilibrando simplicidade e acolhimento no ritmo acelerado da vida urbana contemporânea. Implantada em um terreno de 6 × 20 metros em um pequeno beco de Ho Chi Minh City, a residência está cercada por uma densa massa de construções em concreto. O jovem casal proprietário buscava um ambiente tranquilo, natural e íntimo para receber sua família em crescimento.


O desafio do projeto foi conciliar as limitações do lote urbano — dimensões estreitas, empenas laterais e a necessidade de ventilação natural — com o desejo de criar um espaço discreto, enraizado e capaz de transmitir a essência da tradição em um contexto atual.


O conceito arquitetônico inspira-se nas casas vietnamitas tradicionais, com pátio, varanda, telhado inclinado e passagem lateral. Esses elementos são reinterpretados em uma linguagem contemporânea, formando uma sequência espacial fluida, banhada por luz natural e refrescada pela brisa.



Com recuos na frente e nos fundos, a casa mantém-se arejada e aberta, oferecendo um raro senso de calma e ar fresco no bairro. A M.Casa coloca o conforto humano e o bem-estar emocional no centro das decisões, criando um ambiente suave para as futuras crianças e, ao mesmo tempo, lembrando as novas gerações dos valores silenciosos e persistentes do passado.

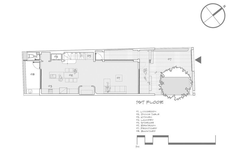
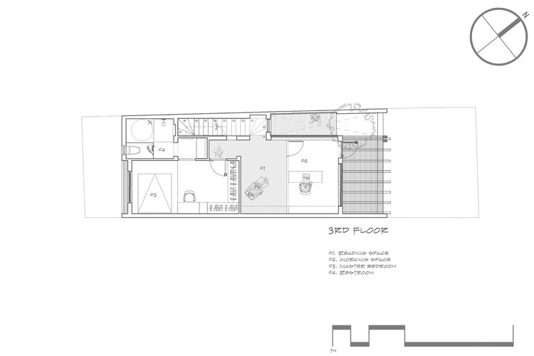
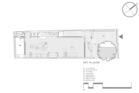
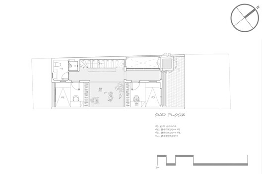
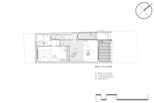
No térreo, sala de estar e cozinha se conectam em um espaço contínuo que incentiva a convivência familiar. Um altar compacto e bem integrado ocupa o centro da casa, preservando sua presença sagrada enquanto se harmoniza com a organização dos ambientes. O segundo pavimento abriga dois quartos, um na frente e outro nos fundos, além de uma área comum entre eles — pensada como espaço de brincadeiras para as crianças. O último pavimento reúne a suíte principal, um canto de trabalho e uma área privativa de descanso, garantindo silêncio e privacidade.

Os materiais — concreto aparente, tijolo maciço, telhas de argila e madeira escura — são naturais e duráveis, trazendo conforto e familiaridade. A luz filtrada pelas telhas e pelos tijolos vazados cria transições suaves nos interiores, evocando lembranças das varandas rurais e das casas de aldeia.

A M.Casa expressa simplicidade, conexão e a permanência dos valores vietnamitas na vida contemporânea. Mais do que abrigo, é um lugar que cultiva emoção e equilíbrio — entre o prático e o espiritual, o antigo e o novo — onde a simplicidade se torna medida de elegância.


























