ESQUISSOS Studio / Esquissos - Arquitectura e Consultoria

ESQUISSOS Studio / Esquissos - Arquitectura e Consultoria - Imagem 2 de 14ESQUISSOS Studio / Esquissos - Arquitectura e Consultoria - Imagem 3 de 14ESQUISSOS Studio / Esquissos - Arquitectura e Consultoria - Imagem 4 de 14ESQUISSOS Studio / Esquissos - Arquitectura e Consultoria - Imagem 5 de 14ESQUISSOS Studio / Esquissos - Arquitectura e Consultoria - Mais Imagens+ 9

  • Área Área deste projeto de arquitetura Área:  243
  • Ano Ano de conclusão deste projeto de arquitetura Ano:  2023
  • Fotógrafo
  • Fabricantes Marcas com produtos usados neste projeto de arquitetura
    Fabricantes:  Azulcer, Cozinhas Delfim Patrício, Geberit, Lightdesign, OFA torneiras, Solmetrik, Tromilux
  • Equipe De Projeto: André Caetano, Ana Garcia, Luís Pereira, Sofia Borges, Mário Pinto, Joana Costa, Nuno Gomes, Inês Belo
  • Arquiteto Líder: Marco Ligeiro
  • Cidade: Sintra
  • País: Portugal
Mais informaçõesMenos informações
ESQUISSOS Studio / Esquissos - Arquitectura e Consultoria - Imagem 2 de 14
© Nuno Noronha Almendra

Descrição enviada pela equipe de projeto. Este projeto consiste na conceção de um atelier de arquitetura dentro de um espaço amplo, vazio, inacabado e sem acabamentos existentes. A intervenção baseou-se numa estratégia de valorização da estrutura pré-existente, expondo todos os elementos construtivos originais. Lajes e colunas de betão armado, bem como as paredes exteriores originais em pedra, foram deixadas expostas, oferecendo ao espaço autenticidade, carácter e identidade.

ESQUISSOS Studio / Esquissos - Arquitectura e Consultoria - Imagem 3 de 14
© Nuno Noronha Almendra

O objectivo foi transformar um primeiro andar há muito abandonado, no centro histórico de uma aldeia, num atelier de arquitetura funcional e com carácter. Ao mesmo tempo era importante criar um espaço de trabalho que refletisse a identidade do escritório, incentivasse a colaboração, e aproveitasse ao máximo a luz natural e as qualidades estruturais do espaço. A intervenção aproveitou o estado natural bruto do espaço, inacabado e despojado dos acabamentos anteriores, como uma oportunidade para destacar os materiais e elementos construtivos originais. Não houve grandes restrições de planeamento, mas o compromisso foi preservar e revelar a estrutura existente.

ESQUISSOS Studio / Esquissos - Arquitectura e Consultoria - Imagem 4 de 14
© Nuno Noronha Almendra

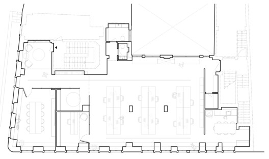
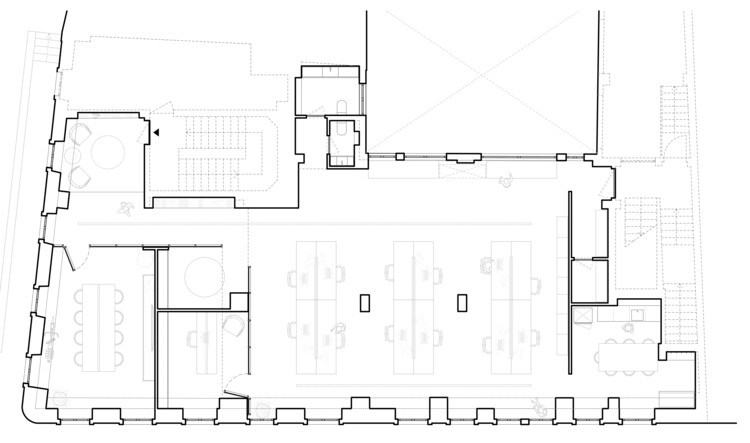
O layout funcional está organizado em torno de um volume central preto, que estrutura todo o interior e contém duas salas de reuniões, uma formal e outra informal, bem como um escritório privado. Definido por uma estrutura modular de metal preto com painéis de vidro, o volume preto central, preserva a permeabilidade visual e permite que a luz natural atravesse o volume. O restante espaço funciona como uma área de trabalho em plano aberto, com mesas de trabalho de grandes dimensões para colaboração em equipa.

ESQUISSOS Studio / Esquissos - Arquitectura e Consultoria - Imagem 12 de 14
Planta baixa

Os materiais foram escolhidos pela sua longevidade e neutralidade, resultando num ambiente intemporal e de baixa manutenção. O forte contraste entre o volume central e a estrutura com textura irregular existente, promove o equilíbrio entre o antigo e o novo, a função e a expressão. A escolha de acabamentos neutros e duradouros, assim como o contraste criado pelo volume central com os elementos estruturais expostos, estabelecem um equilíbrio entre a expressividade da construção original e a funcionalidade e o conforto necessários para o uso diário.

ESQUISSOS Studio / Esquissos - Arquitectura e Consultoria - Imagem 5 de 14
© Nuno Noronha Almendra

Ao reactivar um espaço há muito sem utilização no centro da aldeia, o projecto contribui para a sustentabilidade urbana, demonstrando como uma reabilitação cuidada pode enriquecer tanto o ambiente construído como a comunidade. O piso onde se encontra este projeto estava fechado e sem uso há muito tempo, apresentando um ar descuidado. A sua reabilitação insere-se numa visão mais ampla da regeneração urbana, particularmente significativa no contexto de um centro histórico de pequena escala.

ESQUISSOS Studio / Esquissos - Arquitectura e Consultoria - Imagem 8 de 14
© Nuno Noronha Almendra

Galeria do Projeto

Ver tudoMostrar menos
Sobre este escritório
Cita: "ESQUISSOS Studio / Esquissos - Arquitectura e Consultoria" 26 Nov 2025. ArchDaily Brasil. Acessado . <https://www.archdaily.com.br/br/1036402/esquissos-studio-esquissos-arquitectura-e-consultoria> ISSN 0719-8906

¡Você seguiu sua primeira conta!

Você sabia?

Agora você receberá atualizações das contas que você segue! Siga seus autores, escritórios, usuários favoritos e personalize seu stream.