
-
Arquitetos: Celso Laetano Arquitetura
- Área: 634 m²
- Ano: 2023
-
Fotografias:Favaro Jr.
-
Fabricantes: Accende Lampadário, Arkos, Indusparquet, Kohler, Linear Esquadrias De Alumínio, Multimagem, Nobre Mármores e Granitos, Roca, Spazio Pisos, WP Supply, kitchens

Descrição enviada pela equipe de projeto. Projetada para um casal com os filhos já casados, esta residência térrea reflete o desejo por uma casa contemporânea, prática e fluida. Com ambientes amplamente integrados, o projeto valoriza a convivência, o contato com a natureza e o uso de materiais atemporais.

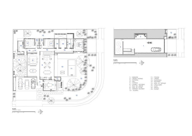
A casa se desenvolve em um único pavimento, com implantação que privilegia a integração entre os ambientes internos e os jardins que envolvem toda a arquitetura. Grandes planos envidraçados proporcionam transparência e conexão visual constante com o paisagismo, promovendo leveza, ventilação e iluminação natural em todos os espaços.

A área social é completamente integrada: estar, jantar, cozinha e espaço gourmet se conectam visual e fisicamente, criando fluidez e amplitude. Uma abertura generosa entre a cozinha e o gourmet facilita a comunicação e o uso conjunto dos ambientes, reforçando a praticidade desejada pelos moradores.

O lavabo, estrategicamente posicionado, atende tanto ao espaço gourmet quanto à piscina, funcionando também como vestiário. O acesso direto da garagem à cozinha proporciona funcionalidade e agilidade à rotina, especialmente em atividades como descarregar compras. Já a área de serviço, localizada na ala íntima da casa, garante eficiência nos fluxos e facilita o manuseio de roupas, sem interferir na privacidade dos ambientes das suítes.

Um elemento marcante do projeto é a estante divisória projetada pelo escritório, que separa a circulação íntima da área social. Executada em madeira clara, ela traz leveza ao espaço e atua como peça central de design, agregando função e estética. A madeira clara também se repete no mobiliário contemporâneo, que, aliado a uma paleta neutra, reforça a unidade visual e o caráter atemporal da residência.

No subsolo, uma garagem exclusiva para motos foi integrada com acesso fácil e discreto, garantindo praticidade sem comprometer a privacidade.

A escolha dos materiais reforça a linguagem contemporânea da casa: placas cimentícias revestem toda a área externa, criando continuidade visual. Já os volumes da garagem e da cozinha receberam acabamento em ripado ecológico na cor cinza, conferindo contraste, ritmo e valorizando a volumetria da construção.







































