
-
Arquitetos: Manuel Ciarlotti Bidinost
- Área: 207 m²
- Ano: 2024
-
Fotografias:Manuel Ciarlotti Bidinost
-
Fabricantes: Butalo Materiales, PVC Pro, Tecmabi

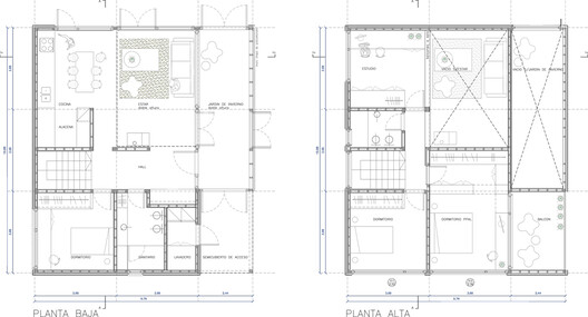
Descrição enviada pela equipe de projeto. Esta é uma habitação familiar concebida em torno da articulação de seus espaços públicos, em particular aqueles vinculados ao mundo da criança. A proposta busca integrar de maneira gradual o exterior, o jardim de inverno, a sala e o estúdio, gerando uma continuidade que permite manter essa relação nas diferentes estações do ano.

A casa é complementada por um ambiente secundário, denominado "Casa B", situado a alguns metros da peça principal. Este espaço flexível funciona como sala de ensaio, ateliê, churrasqueira ou casa de hóspedes, ampliando assim as possibilidades de uso doméstico e cultural, permitindo pensar a domesticidade estendida como campo de produção, lazer e encontro sem interferir na "Casa Familiar".


O projeto se organiza a partir de um eixo linear que atravessa o terreno desde seu acesso, percorre a casa principal através do jardim de inverno e culmina na Casa B. Ao longo desse percurso, os jardins se qualificam de acordo com sua relação com o doméstico: como um acolhimento, como expansão do jardim de inverno e como espaço intermediário de articulação entre as duas casas.


A materialidade se resolve por meio de uma estrutura de madeira apoiada sobre uma laje de concreto. Todas as aberturas são resolvidas com peças de madeira de pequena seção, capazes de sustentar um interior de grande escala. Destaca-se o guarda-corpo tipo viga no estúdio, que assume grande parte dos esforços estruturais do volume superior e libera o térreo.


O projeto propõe assim uma dialética entre compressão e expansão, entre crianças e adultos, onde espaços limitados precedem ambientes de grande volumetria. Esse jogo espacial não apenas intensifica a experiência do percurso, mas também introduz uma dimensão quase monumental em diálogo com os espaços adjacentes, afirmando a condição da casa como peça articuladora do habitar contemporâneo. Essa tensão entre o íntimo e o aberto constitui a atmosfera doméstica.




























