
-
Arquitetos: Guido Otero Arquitetura
- Área: 120 m²
- Ano: 2023
-
Fotografias:Camila Alba

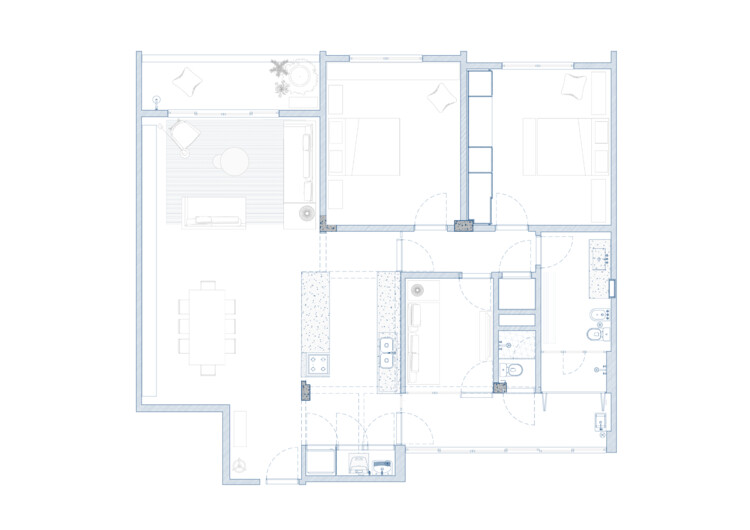
Descrição enviada pela equipe de projeto. Trata-se da reforma de um apartamento no edifício Grajaú na Av. Alfonso Bovero: um prédio de 5 andares, revestido de pastilhas celestes e rosas, de um lado alinhado com a calçada e do outro, com uma vista exuberante propiciada pelo terreno em declive voltado para o vale do Córrego Sumaré.

A intervenção proposta se voltou principalmente para a área da cozinha e da área de serviço: a cozinha escura foi conectada com a sala e a área de serviço compactada ao mínimo de forma que o antigo e generoso espaço agora pode ser utilizado como uma segunda varanda interna do apartamento. As generosas dimensões dos quartos principais foram mantidas, assim como o amplo banheiro, mantendo a generosidade da área íntima original do apartamento.

Novas esquadrias foram pensadas para iluminar o banheiro principal e o escritório localizados no centro da planta do apartamento, antes pouco iluminados, além de permitir a conexão franca destes espaços para o ambiente da antiga lavanderia. Duas tipologias foram pensadas, uma em aço e vidro que faz a interface entre os ambientes íntimos e os sociais e outra de madeira clara que fecha os quartos voltados para o corredor. No banheiro, aproveitando a área de chuveiro generosa, foi implantada uma sauna úmida, trazendo um ar de casa e descontração para o apartamento.


Poucos revestimentos fazem parte da intervenção: na cozinha e varanda secundária utilizamos um ladrilho hidráulico rosa que marca um rodapé alto nas paredes; no banheiro e varanda principal utilizamos o granilite no mesmo tom daquele encontrado nos corredores do próprio edifício. No restante do apartamento um piso claro de madeira Tauari faz jogo com as portas das áreas íntimas trazendo claridade e aconchego ao conjunto.


















