
-
Arquitetos: Altuna Cecchi Moya
- Área: 3092 m²
- Ano: 2024
-
Fotografias:Paula Altieri

Descrição enviada pela equipe de projeto. Ovejitas é um projeto de casas geminadas localizado em San Isidro, um dos subúrbios principais de caráter residencial que cercam a cidade de Buenos Aires, Argentina. O projeto se insere dentro de um processo de densificação da área que já dura vários anos. As antigas casas isoladas construídas em grandes terrenos ajardinados estão dando lugar a projetos de moradia coletiva. Os espaços verdes estão sendo reduzidos, a casa está encolhendo e alguns serviços comuns são compartilhados. É uma maneira de oferecer uma nova alternativa de moradia para um público jovem, de menor poder aquisitivo, mas que pretende manter um estilo de vida característico do subúrbio, seu lugar de origem.

A implantação do conjunto propõe duas fileiras de casas voltadas para uma rua interna central. Esta rua ou passagem atravessa a quadra de lado a lado e permite a chegada de carros e pessoas da via pública até a porta de cada unidade. Na prática, porém, o espaço funciona como um ponto de encontro e lazer para os vizinhos, fortalecendo os laços comunitários e promovendo a convivência entre eles. Embora seja fechada, tem um caráter "urbano" e as casas apresentam suas fachadas voltadas para ela.

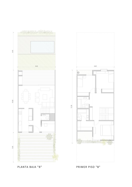
A quantidade de casas em cada fileira foi determinada pelo comprimento disponível de terreno em cada lado da rua, resultando em 13 casas com 6 metros de frente de um lado e 8 casas com 6,5 metros de frente do outro. Nos fundos, cada unidade conta com seu próprio quintal de uso privativo — um espaço verde que inclui uma pequena piscina.

A resolução interna da casa é muito simples: um andar térreo de acesso sob uma laje de concreto com os usos públicos como cozinha, sala de estar e jantar, galeria, e um pequeno escritório. O andar superior, formado por uma construção leve com telhados de grande inclinação, abriga os dormitórios, banheiros e uma sala íntima.

O projeto é concebido como um exemplo representativo de uma tipologia canônica da arquitetura moderna: as "moradias em fileira". Seu principal desafio consiste em alcançar o equilíbrio entre a repetição sistemática das unidades e a singularidade de cada fragmento ou, em outras palavras, compor um todo harmônico a partir da diversidade das partes.



























