
-
Arquitetos: W.A.M.V Arquitetura
- Área: 120 m²
- Ano: 2021
-
Fotografias:Oka Fotografia

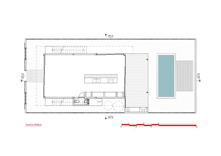
Descrição enviada pela equipe de projeto. No litoral sul da Bahia, entre Trancoso e Caraíva, o escritório W.A.M.V Arquitetura assina uma residência compacta e eficiente que alia soluções técnicas inteligentes a uma estética afetiva. A casa foi pensada para ser uma morada de veraneio de baixa manutenção, com 120m² de área construída em um terreno de 230m².

O projeto partiu do desejo dos clientes — um casal na faixa dos 40 anos — de construir uma casa com volume único, telhado de quatro águas e visual acolhedor, remetendo à ideia clássica de "casa" do imaginário infantil. O maior desafio esteve em conciliar essa volumetria com as diretrizes rígidas do condomínio: taxa de ocupação máxima de 30% e fachada obrigatória voltada ao sul-sudoeste. Para atender às demandas, o escritório organizou o programa de forma vertical: a área social ocupa todo o térreo, enquanto as três suítes ficam no pavimento superior, acessadas por escadas externas. Essa solução libera o térreo para uma planta livre e arejada, marcada por ventilação cruzada eficiente e ausência de pilares ou vigas aparentes.

A orientação da fachada foi utilizada de forma estratégica para controlar os ventos predominantes. As paredes em lajotas deitadas aumentam a espessura e garantem melhor isolamento térmico, ao mesmo tempo em que criam peitoris profundos — que se tornam bancos e espaços de contemplação. Os beirais generosos do telhado contribuem para o sombreamento e a proteção contra chuvas intensas. Ao cruzar a porta de entrada, revela-se um espaço contínuo, sem divisões visuais, que amplia a percepção e expressa o verdadeiro espírito do projeto: uma casa afetiva, funcional e profundamente brasileira.

A marcenaria, com caixilharia tradicional em peroba-mica pintada de azul, reforça o aspecto nostálgico da residência, contrastando com soluções contemporâneas como as paredes de lajotas. Já os pisos em cimento queimado, os ladrilhos rústicos de Sergipe e os decks em madeira tatajuba criam uma base material robusta e tropical.



Na decoração, os próprios clientes lideraram a curadoria, aproveitando objetos pessoais, peças de viagem e obras de arte — destaque para a composição da artista Clara Veiga, feita à caneta Bic, que retrata a igreja do Outeiro das Brisas. O layout interno, no entanto, foi cuidadosamente planejado pelo escritório para garantir proporções harmoniosas e fluxo funcional. O paisagismo, assinado pelos próprios moradores, cria um microclima de mata ao redor da casa, promovendo sombreamento e privacidade.

















