
-
Arquitetos: TIM ARQUITECTOS
- Área: 400 m²
- Ano: 2025
-
Fotografias:Alejandro Peral

Descrição enviada pela equipe de projeto. A Casa Guayubira nasce como uma experimentação do limite entre o espaço público e privado. Com uma fachada que se fecha e um espaço central que atua como o coração do lar, este projeto busca romper com certos padrões convencionais que caracterizam as casas suburbanas argentinas, criando um pequeno oásis urbano.

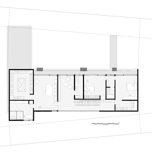
Uma das premissas foi integrar elementos externos à arquitetura, gerando uma simbiose entre ambos. O projeto em forma de "C" surge a partir da localização estratégica da piscina e da área de relaxamento em um dos lados do terreno, envolvendo e criando um ambiente íntimo e protegido.

O conceito "caixa sobre caixa" se manifesta de forma clara: uma peça inferior compõe a área social, enquanto a caixa superior destina-se à área privada, apoiando-se em duas faixas na direção oposta. O térreo, composto pela cozinha, a sala de estar, a sala de jantar e uma sala de sinuca, conta com grandes aberturas que permitem a continuidade visual entre o interior e o exterior. Além disso, possui uma galeria que se conecta diretamente com o coração da casa.


O andar superior foi destinado à área de descanso e se projeta em forma de beiral sobre a entrada principal, criando um espaço semicoberto que abriga o estacionamento de veículos. Nesse nível encontram-se dois dormitórios, a suíte master, um hall de entrada e a lavanderia. A materialidade combina concreto e aço corten, alcançando um equilíbrio entre estética e funcionalidade: enquanto o concreto confere privacidade ao ocultar elementos menos desejados, os brises móveis oferecem flexibilidade, regulando a luz e permitindo uma conexão sensível com o entorno.


Um dos elementos distintivos da Casa Guayubira é o uso dos brises semipermeáveis de aço corten que filtram a luz natural nos ambientes, proporcionando privacidade tanto no interior quanto na área da piscina. Esses brises não apenas bloqueiam os olhares externos, mas oferecem um jogo de luzes e sombras que enriquece a experiência sensorial do espaço e protegem a residência do calor do oeste que tanto sufoca no hemisfério sul.

A Casa Guayubira é uma síntese da arquitetura que pregamos em nosso estúdio.





























