
-
Arquitetos: UNA MUNIZVIEGAS
- Ano: 2019
-
Fotografias:Pedro Mascaro

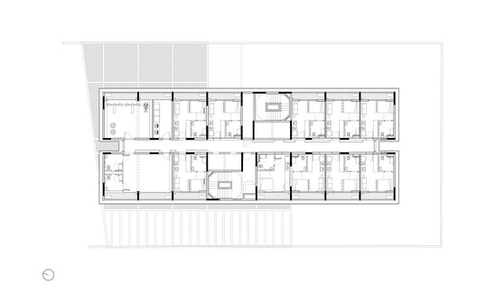
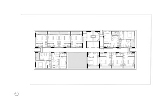
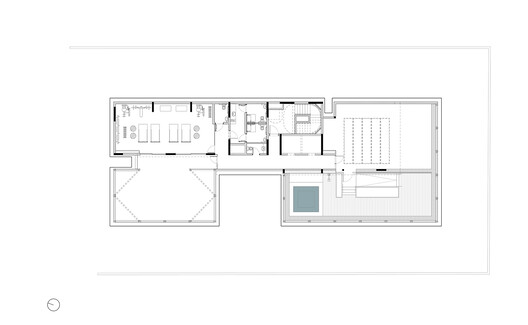
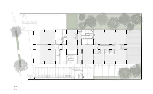
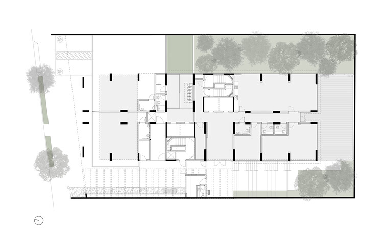
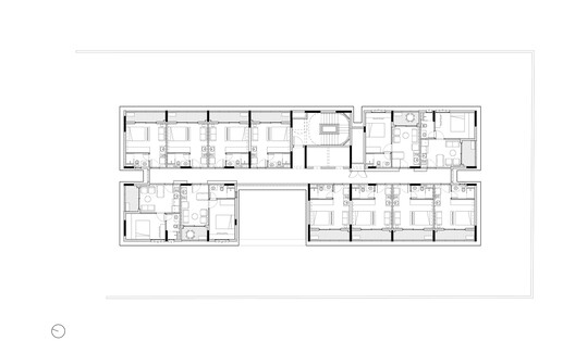
Descrição enviada pela equipe de projeto. O projeto do Edifício na Rua Frei Caneca já nasce com essa qualidade, estar numa região entre o Centro e a Avenida Paulista, num bairro servido de toda a infraestrutura de uma grande metrópole. Acrescenta-se a isso a possibilidade de garantir moradia a famílias de renda limitada numa cidade em que a segregação é a regra, pois a legislação define a construção como Habitação de Mercado Popular (HMP). Viver perto do trabalho, caminhar, sem necessidade de carros, passa a ser um privilégio e contribuição a uma ocupação mais democrática e racional de São Paulo.


























