
-
Arquitetos: PL.Architekci
- Área: 439 m²
- Ano: 2024
-
Fotografias:Tom Kurek
-
Fabricantes: Arco, Davide Groppi, Kristalia , Molteni&Co

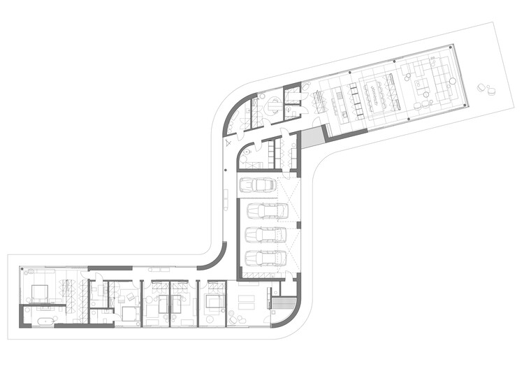
Descrição enviada pela equipe de projeto. A Casa S é uma residência minimalista que vive em simbiose com seu entorno. Sua forma, semelhante à letra "S", foi criada como resultado da inscrição de uma rica disposição funcional de tal maneira que não eliminasse uma única árvore. Durante nossa primeira visita ao terreno, sentimos que esta casa deveria ser um volume simples e envidraçado, aberto para um belo jardim, uma floresta. O problema surgiu quando ficou claro que o complexo programa funcional não se encaixava na área onde o empreendimento era permitido. Com isso surgiu a ideia de "comprimir" o volume torcendo-o em dois pontos.


Assim, a casa se contorce entre as árvores, proporcionando aos moradores quase contato direto com o entorno. A casa se tornou parte do jardim. Sua forma simples e monocromática é como uma escultura de jardim moderna e em grande escala. A casa, portanto, não é apenas uma edificação, mas uma moldura formal para exibir o interior e o exterior simultaneamente. Ao caminhar pela casa, ao longo de um corredor de vidro sinuoso, andamos como se estivéssemos em um jardim; não há uma divisão clássica entre casa e jardim. O que está dentro também forma a elevação da casa. Curiosamente, o sobrenome dos investidores também começa com "S". Todo o conceito da casa está conectado.



A intenção inicial era construir uma casa térrea, mas as exigências do regulamento local — que determinavam uma inclinação de 20 graus para a cobertura — influenciaram o projeto. Então, um telhado tipo sanfona foi projetado, que não é apenas visível do lado de fora, mas decidimos também mostrá-lo por dentro, para a alegria dos investidores, porque eles queriam ter salas com pé-direito mais alto. E esse procedimento definiu todo o interior. No entanto, isso não é apenas pura decoração: iluminação minimalista e ventilação mecânica apareceram nas linhas das curvas; tal arranjo também promove uma melhor acústica dos ambientes envidraçados.


Esta casa foi projetada desde o início como um lugar de silêncio e contemplação: da natureza e da arte. A abordagem minimalista é visível na escolha comedida de materiais, cores e peças artísticas. Os pisos de resina branca se misturam perfeitamente com a faixa de concreto ao redor do volume. O branco onipresente é suavizado por estruturas em madeira de carvalho escuro, realçadas por um acabamento em lâmina.

Para nós, não há divisão entre interiores e arquitetura; projetamos de forma holística, porque os interiores criam a arquitetura, e a arquitetura cria os interiores. Gostamos quando esses dois aspectos se entrelaçam e se combinam. A Casa S é, sem dúvida, o exemplo mais avançado dessa filosofia em nosso trabalho.




































