
- Área: 775 m²
- Ano: 2014
-
Fotografias:Ronaldo Rizzuti
-
Fabricantes: Eliane, Pilkington, REFAX

Descrição enviada pela equipe de projeto. A empresa do segmento químico Kraton, conhecida por seus componentes tecnológicos e cultura inovadora, contratou a Oliveira Cotta Arquitetura para realizar um retrofit em um antigo edifício administrativo construído na década de 1970. O objetivo principal desta requalificação foi converter a antiga edificação em um centro de P&D e customer center.


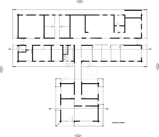
As premissas de projeto estabelecidas pelo cliente ressaltaram a necessidade da requalificação arquitetônica incorporar conceitos de eficiência energética e sustentabilidade, aliados a utilização de sistemas industrializados que pudessem atender a um cronograma de obra bastante compacto (120 dias no total). Desta forma a equipe de projeto iniciou analisando os edifícios existentes, especialmente com relação a quantidade de radiação solar recebida em cada fachada.

Com base em uma analise climática e nos diferentes requisitos de cada ambiente, foi proposto uma composição dinâmica de fachada, buscando reduzir a necessidade de iluminação artificial e ar-condicionado. Utilizando as marquises e beirais existentes, a equipe de projetos criou uma fachada dupla no entorno de ambos os edifícios cuja forma e acabamentos varia de acordo com cada orientação solar, oferecendo assim sombreamento e permitindo a ventilação e iluminação natural.


A estrutura existente de blocos de concreto permitiu que os arquitetos propusessem mudanças de maneira eficiente. Por exemplo, na conexão entre edifícios, as pequenas aberturas deram lugar à painéis de vidro através da substituição dos pilares por uma viga metálica.

Considerando que as premissas de projeto visavam a demolição mínima da fachada existente, as conexões visuais com o exterior foram alcançadas através do reenquadramento dos caixilhos, em muitos casos, aumentando a área envidraçada. Ademais, um layout flexível foi proposto, aumentando as oportunidades do ocupante de trabalhar em áreas com vistas mais valorizadas e com um conforto ambiental de maior qualidade.

Na entrada principal, fachada oeste, foi utilizado o C glass no seu alinhamento exterior para minimizar a radiação solar, reduzindo as temperaturas operacionais dentro dos ambientes de trabalho. Na fachada sul, uma malha metálica perfurada foi aplicada para permitir a ventilação da fachada dupla.

Por fim, a simplicidade e racionalização foram chave para transformar os edifícios existentes no modelo de distinção tecnológica da própria empresa, fazendo uso de criatividade e inovação com soluções simples, a fim de alcançar uma melhor performance ambiental.
















