
-
Arquitetos: Ateliê GR
- Área: 100 m²
- Ano: 2020
-
Fotografias:André Scarpa

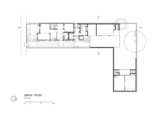
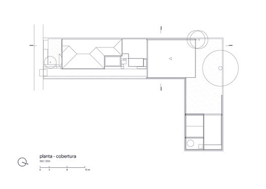
Descrição enviada pela equipe de projeto. A proposta pedagógica da Escola do Bairro fundamenta-se no sentido de pertencimento ao lugar. O projeto materializa essa premissa por meio de espaços abertos e de grande integração, onde as atividades dos alunos se apropriam dos equipamentos do entorno, enquanto o espaço escolar acolhe a comunidade, consolidando-se como um novo equipamento urbano para o bairro.























