
-
Arquitetos: Rosenbaum
- Área: 358 m²
-
Fotografias:Miti Sameshima

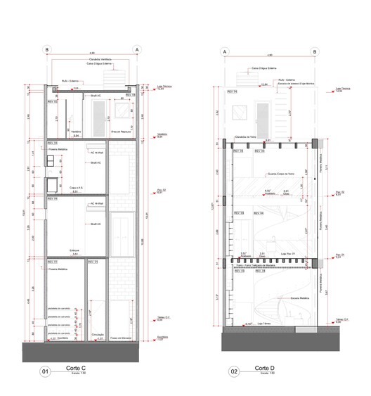
Descrição enviada pela equipe de projeto. A loja conceito da Casa Francis se integra com a rua através de uma pele de vidro, seguindo a mesma inclinação do terreno. Com duas entradas, uma pela Rua Oscar Freire e outra pela rua da Consolação, a calçada e loja ganham um jardim central que percorre todo o pavimento térreo, criando um percurso sinuoso, onde o eau de parfum brota.














