
-
Arquitetos: Atelier Tom Vanhee
- Área: 227 m²
- Ano: 2024
-
Fotografias:Filip Dujardin
-
Fabricantes: DuPont, Cedral, RMC, Resitrix, SVK, Unknown (Removed), Unknown (Removed)

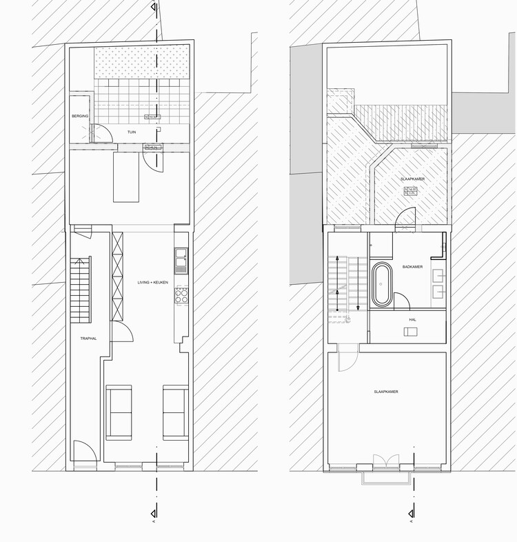
Descrição enviada pela equipe de projeto. O projeto envolve a renovação e ampliação de uma casa geminada composta por porão, dois pavimentos acima do solo e sótão. As extensões posteriores existentes apresentavam comprometimento estrutural e prejudicavam a relação com o espaço externo, limitando a entrada de luz natural no térreo. A principal demanda do cliente era ampliar a iluminação natural e reforçar a conexão visual e espacial com o jardim.


As extensões deterioradas do térreo e do primeiro andar foram demolidas e, em seu lugar, foi implantada uma nova ampliação no nível do solo, com geometria divergente, que se abre para a luz e para o jardim. A fachada posterior desse novo volume é composta por esquadrias de madeira totalmente envidraçadas, incluindo duas portas francesas e três painéis fixos. A cobertura inclinada qualifica o espaço interno e viabiliza a inserção de uma claraboia na fachada posterior existente do volume principal, permitindo que a luz natural alcance áreas mais profundas da residência. Parte do espaço externo foi reconfigurada e ajardinada, transformando o jardim em uma extensão visual da área de estar e, nos dias mais quentes, a abertura total das esquadrias possibilita que o interior se prolongue naturalmente para o exterior.

Considerações ambientais orientaram o projeto. A estrutura da cobertura é composta por vigas de madeira inclinadas aparentes — um material renovável que armazena CO2 —, qualificando a percepção espacial e adicionando calor ao ambiente. A casa está implantada em um terreno inclinado, no qual o nível da rua, na frente, é mais baixo do que o do jardim nos fundos, com o piso interno posicionado entre essas cotas. Essa condição paisagística é trazida para o interior, à medida que o piso do terraço se estende até a área de estar, integrando-se ao espaço como banco e elemento de armazenamento. Parte da área externa é transformada em jardim com um terraço ensolarado, enquanto o sombreamento natural é garantido por meio de um tecido temporário ou por plantas trepadeiras, como videiras ou glicínias, entre as paredes divisórias. Elementos como uma rede, um balanço suspenso em uma viga e mobiliário leve reforçam a integração do jardim à vida cotidiana.

A cozinha está localizada na porção posterior existente da área de estar, e os materiais e intervenções adotados garantem continuidade espacial da frente ao fundo da casa. Ao mesmo tempo, o projeto organiza uma sequência de zonas de uso com diferentes condições de luz e qualidades espaciais, incluindo um canto de leitura, áreas para plantas, um espaço de jantar com banco integrado, um espaço para o piano, áreas de estar, um canto para café da manhã, um ambiente de cozinha e estar e, por fim, um terraço ensolarado.

Um banheiro foi incorporado ao hall da escada, ampliando a acessibilidade, enquanto uma parede lateral em vidro estampado introduz luz natural no espaço. Na fachada posterior, foi aberta uma nova janela no nível +1 e, no nível +2, uma abertura existente foi ampliada e equipada com nova marcenaria. A fachada posterior e a parede divisória receberam isolamento térmico e acabamento em telhas de ardósia, cujas variações sutis de cor acima das janelas fazem referência à ornamentação contida das casas geminadas tradicionais e contribuem para romper a monotonia da elevação posterior.

A nova ampliação aumenta a área de estar, qualifica o espaço e potencializa a entrada de luz natural, ao mesmo tempo em que ativa uma área externa anteriormente subutilizada. As escolhas materiais foram cuidadosamente orientadas por análises de ciclo de vida, priorizando ao máximo a reutilização e a preservação dos materiais existentes.











