
-
Arquitetos: Filles Arquitetura
- Área: 300 m²
- Ano: 2025
-
Fotografias:Ana Pachecco
-
Fabricantes: Artesian, Castellatto por Prisma, Portobello

Descrição enviada pela equipe de projeto. Assinado pelas arquitetas Isabela Soldorio de Albuquerque e Renata Salomão, o projeto Urban Beauty Lounge propõe uma nova visão para um espaço de beleza com linguagem contemporânea, layout disruptivo e um atento olhar voltado à experiência do usuário.

Criado para ser um salão de beleza que busca ir além da prestação de serviços tradicionais, este projeto nasce do desejo de transformar o momento de cuidado pessoal em uma vivência sensorial completa. O cliente, com uma visão contemporânea do universo da beleza, propôs um espaço que unisse estética, bem-estar e convivência em um mesmo ambiente — um verdadeiro beauty lounge, onde cada detalhe contribui para uma experiência memorável. A arquitetura, portanto, assume papel fundamental na construção dessa atmosfera acolhedora, sofisticada e multifuncional.


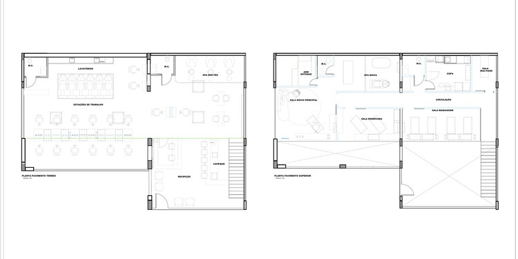
O partido arquitetônico teve início a partir da definição do layout, no qual as arquitetas organizaram os elementos essenciais do programa — como as estações de trabalho, sala de maquiagem e sala da noiva — priorizando a fluidez espacial e a funcionalidade. Em paralelo, foram incorporados ambientes complementares e não convencionais, como o spa dos pés e um icônico bar na área de recepção, ampliando o escopo de uso e reforçando o conceito de beauty lounge como espaço de bem-estar integrado, onde o cuidado pessoal se alia à convivência e ao relaxamento.

A paleta de materiais foi estruturada a partir de contrastes intencionais: o azulejo verde brilhante dialoga com o concreto em formato orgânico, gerando uma composição visual de forte impacto estético e sofisticação. O verde, cor institucional da marca, foi utilizado de forma sensível e estratégica, presente tanto no mobiliário solto quanto em revestimentos. A madeira clara atua como elemento de aquecimento visual e leveza, enquanto o metal preto confere rigor estrutural e equilíbrio à composição geral.

O resultado é um salão que rompe com os estereótipos do setor, oferecendo uma experiência completa — visual, sensorial e emocional. Um espaço que valoriza o tempo do cliente, respeita sua individualidade e traduz, em cada escolha de forma e matéria, uma nova visão sobre o que é beleza e bem-estar nos dias de hoje.

















